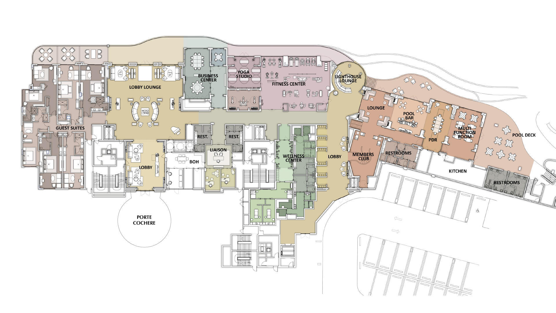
Residence 105D Terrace is a one-of-a-kind floorplan. This 3BR + Den, 3.5BA home offers nearly 700 square feet of private outdoor living, incl. a patio w/ direct access to terrace-level amenities 30 feet above the Intracoastal. Terrace-level amenities incl. putting greens, lush garden sanctuaries & immediate proximity to the resort-style infinity-pool & cabanas below. With over 20,000 sq. ft. of amenities, the residence showcases European oak-finish cabinetry, Wolf & Sub-Zero appliances w/ gas cooktop, & triple-pane floor-to-ceiling impact sliding glass doors framing expansive views. 2 garage spaces included. As an exclusive residential building w/ no hotel component, ownership combines the privacy of a dedicated community w/ the legendary services of The Ritz-Carlton. Q2 - 2026 completion
View Virtual TourComercial Vehicles Prohibited, Lease OK, Lease OK w/Restrict, Tenant Approval
Ritz Carlton Residences, Palm Beach Gardens
Ritz Carlton Residences, Palm Beach Gardens
Billiards, Boating, Cafe/Restaurant, Community Room, Exercise Room, Manager on Site, Pickleball, Picnic Area, Pool, Spa-Hot Tub, Extra Storage, Trash Chute, Bike Storage, Business Center, Cabana, Putting Green, Dog Park
Cable, 3-Phase Electric, Gas Natural, Public Sewer, Public Water, Underground
2+ Spaces, Assigned, Covered, Guest, Garage - Building, Under Building
Intracoastal, No Fixed Bridges, Navigable, Seawall, Marina
Elevator, Entry Lvl Lvng Area, Foyer, Cook Island, Laundry Tub
Dishwasher, Disposal, Dryer, Microwave, Range - Gas, Refrigerator, Smoke Detector, Wall Oven, Washer, Washer/Dryer Hookup, Water Heater - Elec, Fire Alarm
Auto Sprinkler, Covered Balcony
Private Road, West of US-1, 10 to <25 Acres, Treed Lot
Impact Glass, Sliding, Hurricane Windows
Frame/Stucco, Concrete, Elevated
Palm Beach Gardens and the rest of South Florida suffered extensive damage when it was hit by hurricanes Frances, Jeanne and Wilma in 2004 and 2005.
If you're an avid golfer, visit PGA National Resort & Spa. The resort has five championship courses that are challenging even for the pros.
Palm Beach Gardens has proudly been the headquarters for the Professional Golfers Association of America.



Add as Favorite



Add as Favorite



Add as Favorite
All listings featuring the BMLS logo are provided by Beaches MLS Inc. Copyright 2025 Beaches MLS. This information is not verified for authenticity or accuracy and is not guaranteed.
© 2025 Beaches Multiple Listing Service, Inc. All rights reserved.
Listing information last updated on December 5th, 2025 at 10:46pm CST.